A well-designed rustic cabin is like a charm cast into the air by the wood grain that the sunray finds year by year. The floorboard’s gentle creak, the powerful, alluring scent of wood, and the yearning of being home are only a few of the attributes. The uninspired work of cookie-cutter construction might be the closest thing. Our cabins break the mould. Every aspect of the design has been carefully thought out for sturdiness and energy preservation, as well as for that cozy allure that is so strong that one just doesn’t want to leave. Up to the roofline, these houses are designed to not only brave the outdoor conditions but also to provide warmth and fashion.

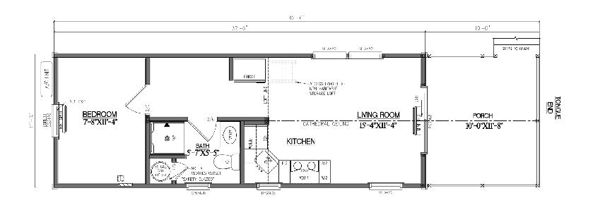
A Rock-Solid Foundation and Flooring That Feels Like Home
Your strength can be traced right back to the moment when you cross the threshold. The wall structure consists of resilient 2×4 lumber with a layer of ½-inch OSB and high-quality housewrap for the ultimate protection from wind, water, and even the ravages of time. This is not simply a building; it is reassurance that your cabin can face many seasons of downpours, snow, and sunshine without any problem.
Flooring is also quite spectacular. Large areas made out of 2×6 joists hold up a layer of ¾-inch tongue-and-groove plywood flooring tightly; hence, there is no possibility of noises due to creaking or bending. The R-14-rough-foam-that-is-sprayed-as-the-floor-insulation-is-also-a-rodent-barrier-sealing-out-drafts, -pests, -and-unwanted-surprises. The walls offer R-13 insulation and the ceiling R-19, thus ensuring low heating and cooling costs and a stable, warm, and inviting climate inside.
Completing the flooring is sumptuous vinyl plank that realistically depicts wood. It feels hearty when one is barefoot, but it still remains very resilient to spills and scratches and is also quite simple if one wants to clean it great for families, weekend visitors, or anyone who appreciates the charm of wood but does not like the maintenance. So, a foundation that can remain intact for many decades yet appear soft, welcoming, and wonderfully lived-in right from the start is what you get.

Walls and Roofing: Timeless Beauty with Modern Efficiency
When you enter, you are immediately engulfed by the cabin’s interior design. Tongue-and-groove knotty redwood walls are finished with a clear stain that brings out the wood’s every natural swirl and knot. Really, this wood has a life of its own it is warm and rich, and unpainted or drywall, you just cannot duplicate it. The entire place is raised by the pine finishing boards and mouldings, which are matched and run throughout, adding a subtle and refined element to the space.
One porch is ready to have lazy afternoons with you. Pressure-treated railings can be stained in your preferred color, so they not only fit very nicely with the cabin’s style but also last for years in spite of the weather. Being made of Trex composite, the decking also comes in the color of your choice it requires little or no maintenance, and splinters are practically impossible. Besides that, it is built to withstand everything that goes from morning coffee to the evening barbecue, to mention only the extremes, without changing its appearance or shape. When paired with the cabin’s comprehensive insulation, it is a major contributor to the cabin’s being energy-efficient and able to keep up with the conditions outside all year round.

Doors and Windows: Light, Style, and Easy Living
Deliberately selected windows and doors that provide the right balance of aesthetics and usefulness allow natural light to saturate the cabin. All windows feature a soft clay finish and classic prairie grids those elegant divided-light patterns that harken back to traditional farmhouse design while keeping a fresh and cohesive look. Half-lite prehung doors consist of large glass panels that welcome sunlight and give every entry a bright and open feeling. So, you won’t have to struggle with the dark or feel trapped inside anymore. In fact, through these openings, you are connected with nature while the interior is safe, secure, and energy-efficient.

A Kitchen That Inspires and Delivers
Even the tiniest cabin can have a kitchen that is not only large enough but also motivating. Clear-stained pine cabinets provide a timeless source of warmth as well as ample storage. Formica countertops can be chosen in a particular color so the kitchen can be personalized to one’s liking crisp white, warm neutral shades, or something more daring. It provides plenty of surface space and a clever layout, so cooks and entertainers alike will never feel cramped. This kitchen is capable and ready, whether you desire to prepare meals for yourself just briefly in the mornings or to hold a feast with all your trusted relatives, all the while maintaining the rustic character of the cabin.

Bathroom Bliss: Compact Luxury Done Right
Spatial constraints notwithstanding, the bathroom demonstrates that wise interior design is superior to size. Storage is offered by way of a 24-inch pine vanity that has been stained clear to coordinate with the rest of the cabin, but at the same time, it shouldn’t be regarded as taking the floor space over quite. Couple it with a 36-inch shower compartment and, bingo, it looks like a modern spa area rather than a tight space.
What makes this cabin really one of a kind is not just one feature; it is how every piece fits together. The sturdy base and efficient insulation lead to lower bills for energy and fewer problems with maintenance. Knotty pine and finishes that can be altered on a whim give a feeling that the place has been inhabited and made one’s own even as one is just moving in. The porch calls out to you to you take it easy, and the kitchen and bathroom are able to deal with life’s practical side with style and grace. If you want more info about timber frame prices, you can read here.
Source: trailsidestructures