Small-space living is experiencing a quiet revolution. Tired of compromising on aesthetics and quality just for the sake of size, people are now looking for something that is both manageable and stylish. The BDE 1200-2RT is a perfect example of a small, well-designed space that lets you have everything. This unit features a sleek, modern design with high-end interiors that offer a level of luxury that even bigger homes can only dream of. Upon entering, it is evident that every element has been chosen with comfort and quality in mind. Designed for those wanting strength and resilience without the difficulty, the BDE 1200-2RT is not just a cabin but a significant lifestyle change.

Durable Exterior Designed for Longevity
The exterior of the BDE 1200-2RT is eye-catching at first glance and is clad in Canexel siding, a luxurious wood-composite material that retains its vibrant color for a long time and requires very little maintenance. When combined with eye-catching corrugated metal elements, the overall appearance becomes fresh yet classic, a design that will look good around any scenery whether you’re hidden in the forest, on a lakeside, or at a beautiful campground. Energy-efficient Thermopane windows are installed throughout to keep your heating and cooling bills to a minimum while bringing a lot of daylight indoors.
Frame and structure are equally well considered. Exterior walls have a 2×4 framing spaced at 16 inches, which makes for great strength, and the white trim package gives a neat and stylish look to all corners. A 50-amp electrical service means you can get a hookup wherever you go, and you can easily run lights, appliances without any power shortage. This exterior, whatever the season may be, is architected to withstand the elements for many years to come.

Interior Finishes Bring a Touch of Class to Everyday Life
The interior of the BDE 1200-2RT is a continuation of the upgraded exterior. Walls are covered with glossy modular cabinets which have a smooth finish that not only looks very elegant but is also resistant to scratching and staining. Doors have soft-close hidden hinges, and every drawer features soft-close glides, making this premium build produce a satisfying, whisper-quiet finish when opening or closing these elements. White trim package visually oganiizes and connects everything resulting in an airy, bright environment that makes even a small space appear open and welcoming.
Additional functional elements are plentiful. 1.5-inch white wooden blinds provide privacy as well as light control in a rather simple and elegant way, while the complete LED lighting package for both interior and exterior ensures bright, energy-efficient illumination exactly where and when you need it, countertops, reading nooks, and porch lighting for evening gatherings. It is the kind of clever design features that take daily life to another level of smoothness and enjoyment.

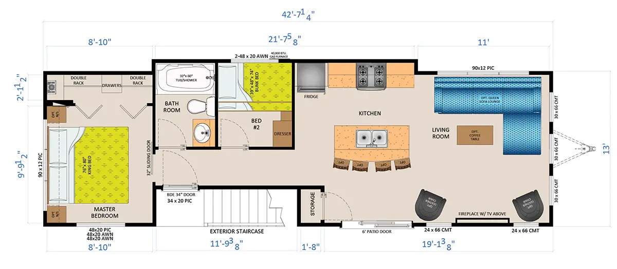
An Exceptionally Efficient and Stylish Kitchen
The kitchen, which is the core of the BDE 1200-2RT., contradicts the notion of the small size being a disadvantage. Corian countertops are the centerpiece of the kitchen featuring the kind of surface that is found only in those homes that have allowed for extraordinary extravagances, it is non-porous, easy to clean, and resistant to heat and stains. The high performance and a characteristic shiny surface of stainless steel appliances contribute to an experience reminiscent of a professional kitchen, while the undermount stainless steel sink offers a large functional workspace and neat look without visible seams or problematic edges.
The glossy modular cabinets not only beautifully accentuate the kitchen but also offer a large storage capacity which can hold everything from daily dishes to those items that you take out only for special occasions. The soft-close elements deviate you from the scenario of continuous slammed doors and rattling drawers, even when the road is not that smooth. Whether it is a simple breakfast that you are preparing or a full dinner after a day outside, this kitchen strikes a balance between roominess and efficiency, and it genuinely is a pleasure to work in it.
Living, Sleeping, and Seasonal Comfort Features
What the BDE 1200-2RT accomplishes is turning the optional features to chances of actual personalization. Just picture yourself in a pillowtop bed fully decked out with headboard and bed frame, covered with your choice of a thick comforter. Put a leather armchair and sofa bed, and you have a lounge space ideal for reading or getting together with friends. Kitchen ceramic tile backsplash adds class while keeping the area practical, and dishwasher means zero post-meal cleanup time.
Climate control is a whole other story. Get the A/C unit when the summer days are really hot or the all-season winter package to keep you comfortable all year long, even in the coldest regions. Fireplace option gives you instant mood lighting plus it helps with heating capacity. In other words, attention to every comfort has resulted in the realization of the BDE 1200-2RT as a full-on residence instead of a weekend getaway.
Reasons That Make BDE 1200-2RT Highest Quality
Truth be told, it is not just one feature that makes the BDE 1200-2RT so great, it is how it is easy for all the components to function well together. With sturdy 2×4 construction and top-notch siding that should last for many years to come, you get the daily luxury hotel feel from premium interior finish, soft-close hardware, and above-average features.
Among a lot of price compromises, BDE 1200-2RT takes a stand and says no. It brings together modern looks, functional engineering, and cozy comfort all rolled into one very complete package. So if that space you have been dreaming of that feels both lavish and livable is the one, here it is. You can start your next chapter of comfortable and carefree living right there.
Source: rvlifemag