In a world where downsizing is becoming stylish, 12×38 Country T park model cabins from Hilltop Structures are blending perfectly with their raw rustic beauty, modern efficiency, and practicality. This turn-key display model, priced at $60,695, is available and waiting to materialize your wildest conceptions of the minimalist lifestyle. Constructed as a factory-assembled RV cabin, it is meant for those who want to have a small getaway without the high costs and maintenance of a traditional home. In the end, it doesn’t matter if you want it as a summer break, as an Airbnb, or your next tiny home, the cabin is compact yet supremely comfortable all year round.
Hilltop Structures, a family-operated tiny home builder situated in Cumberland Furnace, Tennessee, offers such park model RV cabins that meet ANSI A119.5 requirements and have RVIA safety seals. Quality, which is mainly achieved by Amish-trained craftsmen, was the company’s main concern at its inception—now it proudly assures its customers whilst delivering orders all over the country, providing a 12-month structural warranty as well as manufacturer coverage on appliances. People speak very highly of a number of them who have experienced the firm’s personalized customer-oriented atmosphere, and in the reviews, they made it clear that deliveries on time, attention to the particulars and structures which were well beyond the expectations like well-built barns and cabins felt more or less custom-made, were their main praises. No wonder Hilltop’s reputation has gone from strength to strength in terms of being able to bring dreams to life with buildings that are both durable and livable.

Why Would One Prefer a Park Model Cabin to Traditional Homes?
Park model cabins represent their uniqueness in respect to being much more affordable and versatile alternatives to traditional-built houses or even mobile homes. Due to their living space of less than 400 square feet, they can evade the high-costs of full-time residences while at the same time offering more room and comfort than your average motorhome—the concept of these cabins is simple yet they have everything from a kitchen, a bathroom, and a bedroom area without the unnecessary overcrowding of other bigger properties. Differently from mobile homes regulated by HUD, the designs and appearances of park models are much more flexible due to the fact that most of them are done at lower prices thus leaving money not only for upgrading but adventures as well. They are low-maintenance, energy-saving, and, in addition to that, they are equipped with a steel chassis giving them the ability and advantage of being easily and cheaply moved to another location if necessary.
For retirees, snowbirds, or anyone who is willing to downsize, these cabins are just the thing. They are built to promote the lifestyle of less but with the focus being on the deepening and the quality of experiences with little to no required upkeep. In the summer, they are just great as a camping trailer at camps, as a seasonal house at a hunting lodge, or as an extra living space. Plus, being RV classified really helps when it comes to zoning in recreational areas. Nevertheless, although getting a loan for it might be a little more complicated than for a standard home, the great savings, and swift construction just make them a wise investment in the case of a perfect getaway or rental income.

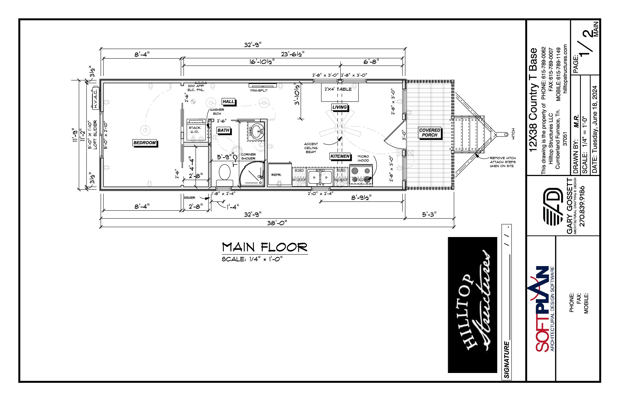
Key Features and Thoughtful Design
The Country T Cabin is 12 by 38 feet and features a layout that is not only rich in functionality but also exudes warmth. The cabin includes one bedroom and one bathroom. Get a breath of fresh air on the 5-foot porch that comes with a sturdy 4 by 4 railing, perfect for your early morning coffee or letting your spirit unwind in the middle of nature during the late afternoon. The exterior of the building showcases log siding painted in SashCo’s Hazelnut, a warm shade. And a long-lasting Energy Star 40-year warranty backs the bronze metal roof, which is both eco-friendly and durable.
In an effort to avoid the loft and its shady, cramped-feeling reputation, they have installed vaulted ceilings which, somehow, still maintain that lovely warm ambiance of a small cabin. Pinewood 1×8 tongue and groove boards are used for both the wall and ceiling, and around the door, window, and corners, the wide pine has been trimmed in for a seamless finish. Twenty-first-century lifestyle is encapsulated in the kitchen decorated with Colorado Aspen cabinets, and LifeProof laminate Dusk Cherry flooring has been used throughout the house to give it a warm and hardy look and feel. A corner shower, toilet, vanity, light fixtures, and included upgrades like the washer/dryer hookup in the closet and the ceiling fan in the bedroom make it so that it is completely turn-key. Large windows made of insulated vinyl, like an egress, and a slider allow inviting sunlight to pour into the room.


Versatility and Real-World Uses
Among the other things, the Country T model is distinguished by its flexibility and is capable of being a hunting camp, campground rental, or in-law suite. In addition, the home’s quaint cabinets and roomy shower provide comfort during prolonged stays. Besides that, being mobile allows it to be positioned in RV parks or on one’s land with minimum foundation requirements—such as a pad or piers. Thus, the charm of the cabin as well as the included amenities guarantees a speedy return for Airbnb hosts or retreat centers. Thanks to the delivery of Hilltop all over the country, this is accessible with the option for the third parties haulers who are outside their zone.


Ready to Embrace Tiny Living?
The 12×38 Country T Cabin Park Model is not just a frame—it is a new way of life that is freer, more affordable, and more enjoyable with less space. The combination of Hilltop Structures’ credibility and the deliberate features of this model put it right to the spot for making memories that last. So, if you are not convinced, then take a step to their showroom or watch the video walkthrough of the model. If you are set to downsize but still want to keep the quality intact, then this may very well be the next place that you will call home.

Source:hilltopstructures